R-GZ-11 吳宅
概況
設計團隊:陳迪雅 羅結然
建成時間:二〇一七年
建築面積:二百五十七平方米
工程地點:廣州-珠江新城
房地產高峰期的交樓標準裝修有個普遍的特徵—風格隆重而奢華。設計師與業主就室內設計達成共識-回歸生化本身。新的裝修工程在將原有的裝修裝飾層拆除或剝離後進行。
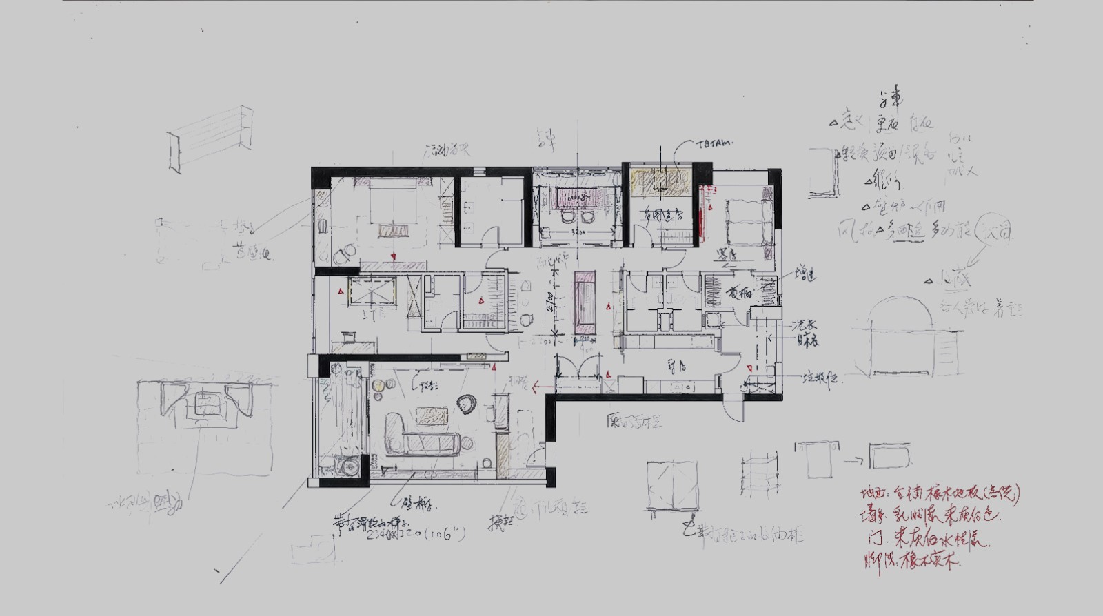
格局
單位朝向東南景觀,可以見繁華的都市一線江景。空間規劃上主要是重新設定了餐廳的位置-臨窗向南,並將無直接採光的原餐廳區域置換為女主人的工作區,這個地方也是全屋動線交合的核心。沏茶、輕食、吧式會客都在這裡進行。窗外景物誘人,但生活始終由日常承載和充盈。
基礎裝修改造和更新
這是一項典型的改造工程。但並不是一件輕鬆的基礎工作,需要繡花一般的耐心,除了保持整體的形態不變,還要按需添加各類設備和管線。因此設計圖的工作等於對現場作了多次的測量。
木製品和傢俱
全屋的材質搭配和工藝採用了混搭的方式,以此去包容各類新舊物件和環境面貌。
所有的小木作和傢俱紅橡木為基本上納入黑胡桃、和老榆木,也包括由米白色混油作終飾的板材。
混搭本身是一種設計手法,不過在這裡似乎昇華為一種哲學理念了。


<
>
