R-GZ-09 李宅
概況
設計團隊 :陳雅迪 陳建雄
建成時間:二〇一五年
建築面積:三百九十五平方米+五百九十平方米
工程地點:廣州花都
格局
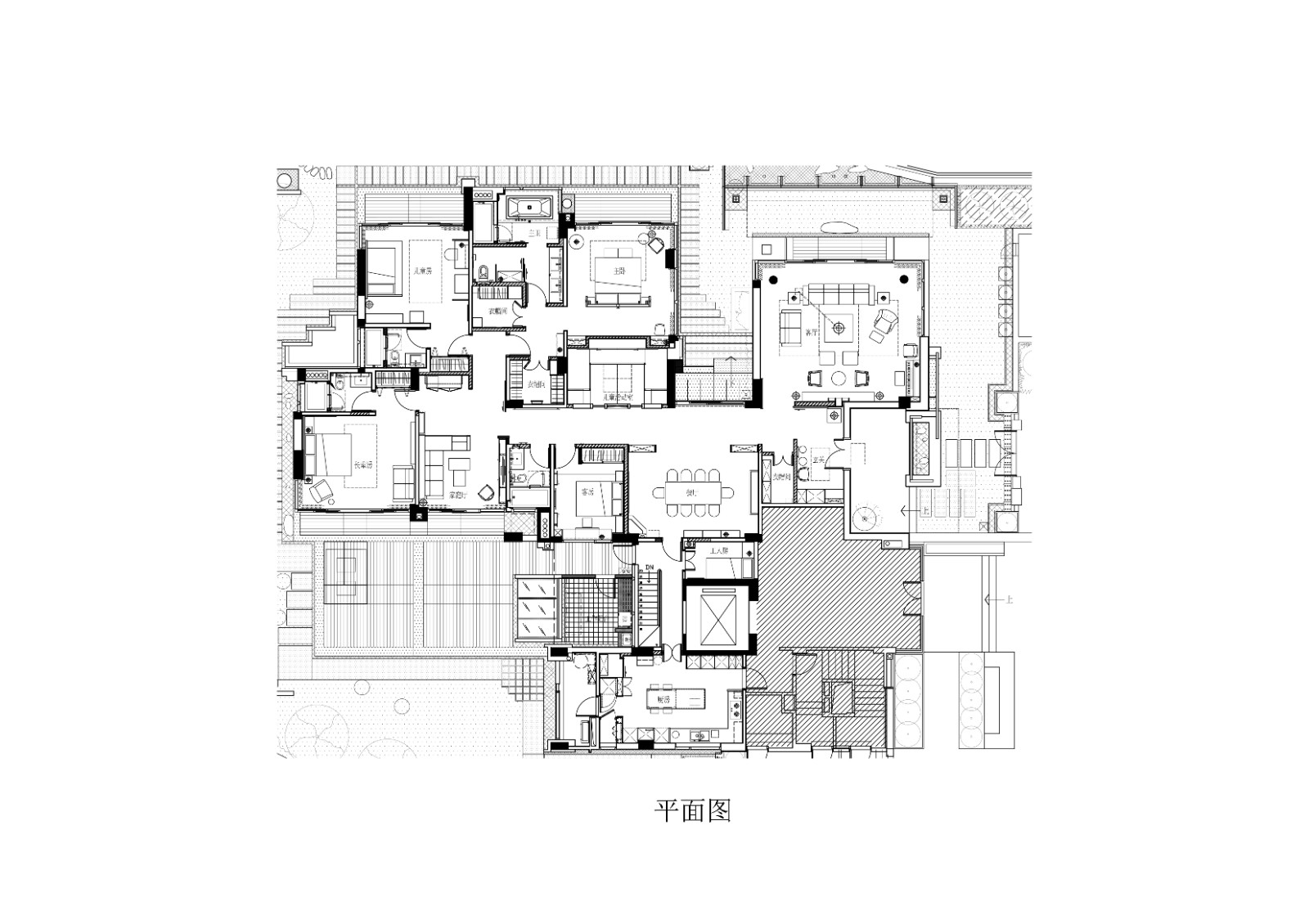
專案單元位於所在樓棟的首層,前臨水溪。周邊可用作園景的空間環繞四周。以日常起居功能為契機,利用好難得的室外地塊就是關鍵。
建築條件比較特別,內部以一條長廊統領,各個空間分列兩側及端頭。室內設計則順勢而為。除了常規的起居空間外,專門辟出一處小室作兒童閱讀和遊戲之用。餐廳位於核心位置並且是各個空間的交通連接點,也方便照應鄰近的小室。基本上每處室內空間都有可連接的庭院部分,因此,庭院又可以視作內部空間的外部拓展。
庭院
設環道,以汀步為主,草坪輔之。按方位形成四
個區塊,左側是連接前、後園的通道,右側小院是入口,前、後兩個院子對應動靜二界,所謂動,是一家人的﹁戶外客廳﹂,是生活區。靜區適合漫遊、靜思。
綠植
參考佛家庭院五花六樹的配置形式進行排布,在門廊築池,栽上迎客松,後院移植一株冠徑接近四米的桂花以及若乾果樹。
木製品和傢俱
分別按實木和板式兩個部分進行設計和生產,囊括了廚房和衛生間所有的設施。部分傢俱採用﹁老榆木﹂,這是特指來自山西地區舊民居清拆下來的木料,木性穩定,具有強烈的文化屬性。
照明
螢光燈作主體光源是這個項目的特點。統一採用螺口接頭,便於日後LED技術得以改進和提升後可以替換光源。在家居環境裡,傳統燈具的光效有一個LED燈具無法替代的優點—柔和!
幾點思考
何謂舒適性?吊扇,在這個項目中分別在客廳、起居室和次臥應用,在實際的使用中令人喜愛。這種可按需作正反方向轉動的吊扇在夏、冬兩季,尤其是在不太冷不太熱的環境條件下非常適用。這似乎可以反映一個值得深入認識的問題:電氣設備在居室中所起到的作用並非越﹁高級﹂、越複雜、越多越好。人對於自身這個特殊的內環境,如果過度依賴建築設備的運作去適應外部的環境其實往往失去了交互和本能的調節作用,是否恰當?我認為值得思考。
﹁園景﹂和﹁園境﹂
﹁景﹂,往往偏重於視覺。﹁境﹂,既講物的境,也指人、境交互達成的﹁心境﹂。
古人講﹁和於陰陽,調於四時﹂。因此園境是對空間以及時間因素,如一天之中的朝夕,四季當中的節氣和時令的和應。最大的特點和起到的作用是動、靜結合。
一體化設計是這個項目最大的特點!
何謂一體化呢?如果將土建、裝修、設備、外環境都交付一家事務所進行設計,這只能表示這家事務
所有具備各個專業的能力。﹁一體化﹂,最大的特點是全面、整體地考慮一個項目,減少專業間壁壘造成的應用重疊,各自發揮造成的過度設計、浪費資源的問題。因此一體化是方法,是系統思維,而不是依賴規模。一項有一定規模的住宅工程,要體現上述的一些認識、共識,需要建立在相互尊重、信任的基礎上,在這個項目的設計-實施過程中,業主夫婦體現了良好的修養和素養。自律,這個詞似乎很難一下子跟設計工作關聯上,不過這個專案確實因自律而成。既關乎業主也關乎設計師。可以講項目達成的是願望,而非欲望。




