明心軒
概況
設計團隊:鄧麗堅 蔣賢妹
建成時間:二〇二二年
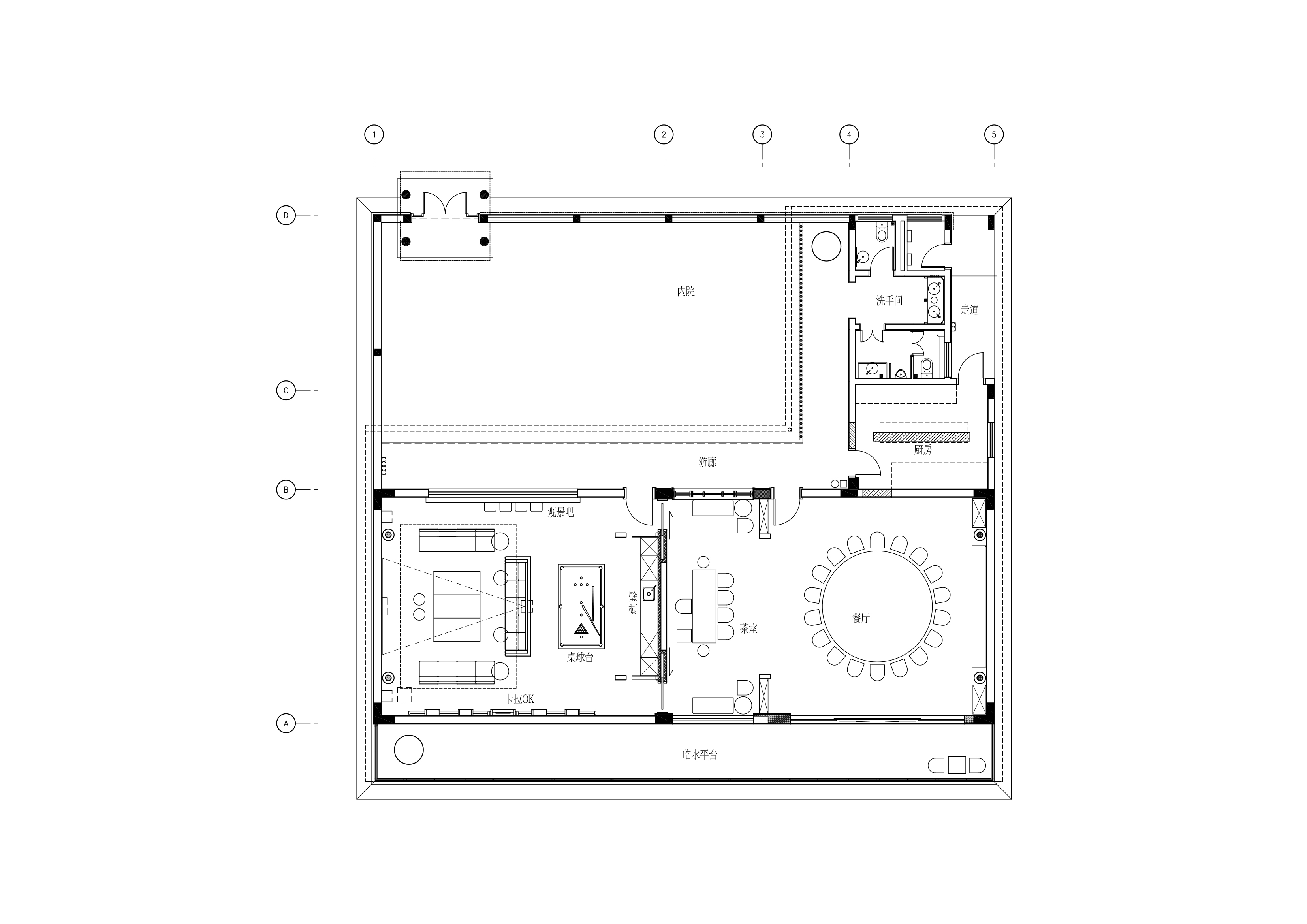
建築面積:四百零八平方米
工程地點:廣東新興


<
>
明心軒
概況
設計團隊:鄧麗堅 蔣賢妹
建成時間:二〇二二年
建築面積:四百零八平方米
工程地點:廣東新興

