R-GZ-04 魏宅
概況
設計師 :周己立
建成時間:二〇一四年
建築面積:二百七十平方米
工程地點:廣州花都
如果說這是一個以親子為核心的項目,會否讓一些年輕的父母或者曾經年輕的父母獲得共鳴呢?
大概在十年前,有不少七、八十後的年輕新晉爹地、媽咪,帶著對未來的期盼、憧憬,選擇心水的地點、心儀的學校,不惜以孟母三遷的精神立業築居。在我們工作室的住宅專案中就有不少這樣的故事……
一些歐美地區的早教理論,以及按照這些理論在中國落地生根的學校其時正方興未艾,不過無論早教還是成人教育,這些理論背後的信仰部分如果被剝離的話是否可以達到一致的效果呢,我頗為好奇。於是,邊思考邊實踐。
Ikea,為了促進兒童產品銷售,曾認真地分享過一份名為《Play report》的報告。
裡面有一句話:﹁For children,play is life itself﹂。不得不說,這份報告裡表述的見解或深或淺地與早教理論息息相關。
這些理論、資訊和空間設計之間到底是什麼關係呢?這樣的自我提問可能很有意思,不過設計概念並非由這樣的邏輯演繹出來。
同一時期,我和兩個正處孩童期的女兒重複最多的親子活動,應該算是一起看電影《音樂之聲》(《The Sound of Music》),前後共三次。沒想到的是,電影裡面家庭教師瑪麗亞引導三個小朋友登臺表演的一段記憶成為了這個項目的催化劑。
女主人是一位時尚達人,也是一位兩個小童的媽咪,準確來講小弟弟還只是懷中的baby。此外,主人家喜好日系產品和風格,玩得一手好攝影。在家居陳設設上注重收納,酷愛白色調。
室內設計在已有裝修的前提上展開,只作細化不做改動。
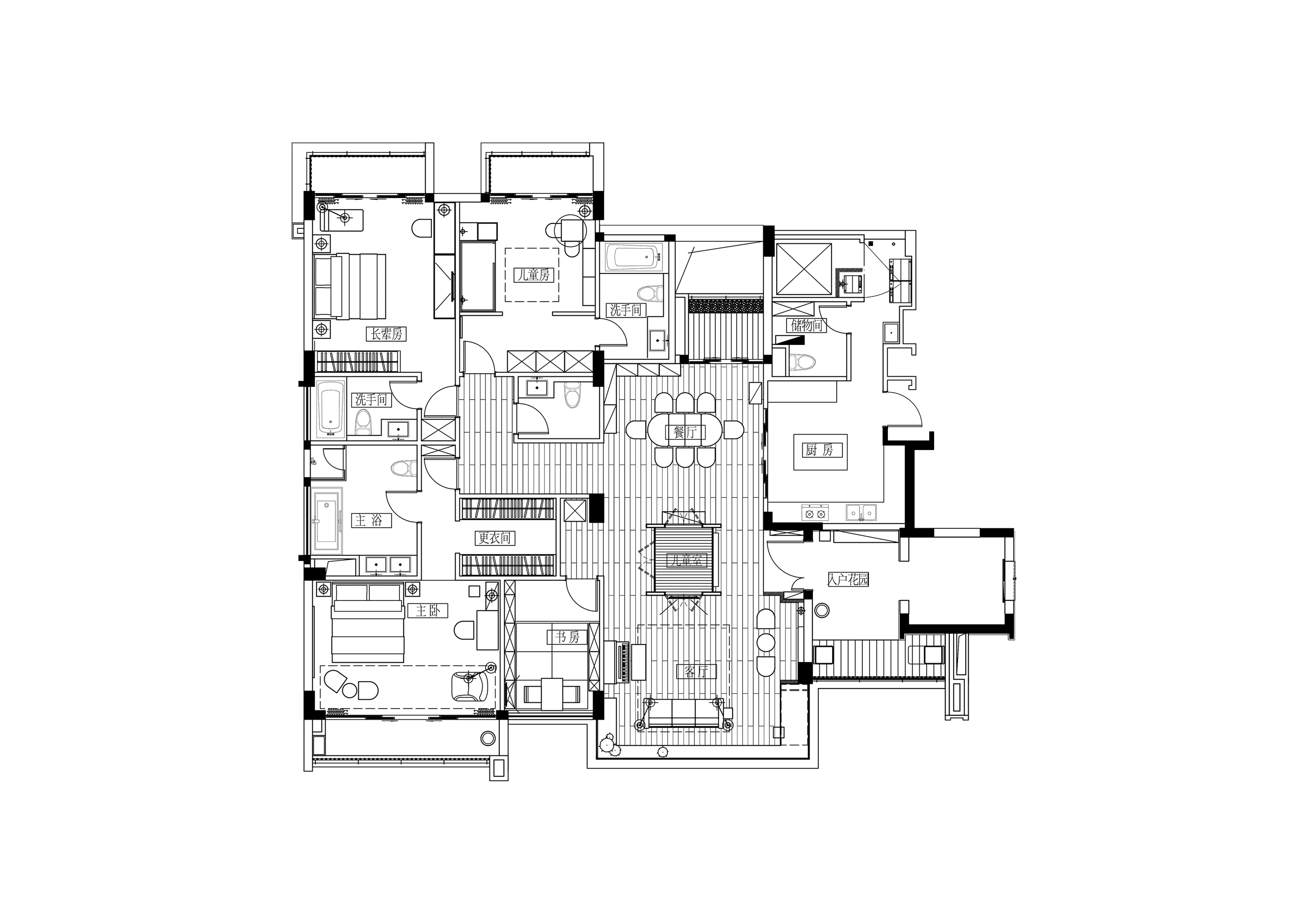
親子空間是主要的。方案頗為大膽地在場地客飯廳的中央架設了一個分作兩層的小木屋,作為兩個小傢夥使用的底部用作收納,上部可以攀上的遊戲空間。對,就是有點像《音樂之聲》那個小舞臺。依此,入口玄關,電視牆,擺設備餐櫃的位置也應運而生。
高大的南向落地窗是這個單元的特色,我們按不同的方位和空間特徵臨窗設置了條狀的書櫃,分作角位式閑坐區、壁爐式壁櫥和鋼琴位置。值得一提的是多功能室的設定,這是一個集書房、工作室、客房為一體的空間。是我們對多功能空間處理的早期實踐。


