李先生辦公室
概況
設計團隊:周己立 陳迪雅
建成時間:二〇一五年十二月
委託方 :肖小姐
建築面積:三十三平方米
工程地點:廣州
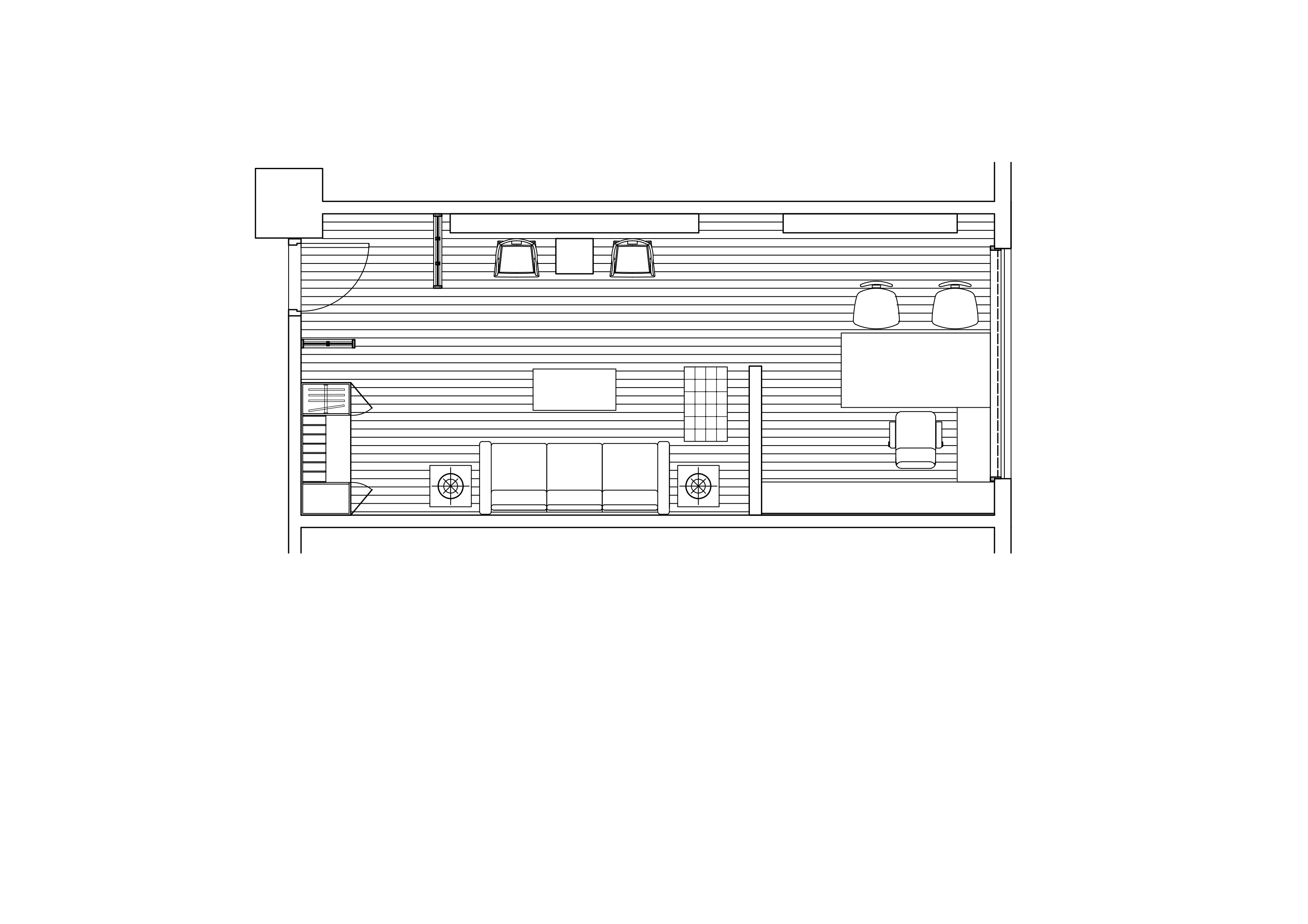
項目委託方是一家著名廚房電氣公司的總經理,我們應邀為其公司內部的個人辦公室進行了改造工程。
設計理念是在面積有限的空間內,將會客、辦公和展示等功能作出合理的編排,以此達到使用便利、舒適、合乎品牌形象的要求。最後的成果是在反復推敲幾種要素組合的基礎上所得。考慮到使用者安徽籍貫的背景,除了使用木料為主要材質之外,專門定制了一對實木﹁梳子椅﹂使之和其他現代標誌性傢俱進行對話和互動。
兩年後,委託方公司的規模擴大,異址再建。這個獨立的辦公室的整體格局和傢俱被原封不動地移走,再次成為新辦公室的一員。


<
>
