T-CONCEPT
概況
設計團隊:周己立 羅結然
建成時間:二〇一七年七月
委託方 :杜先生
建築面積:一百九十七平方米
工程地點:廣州
設計基點
專案位於廣佛交界,屬廣州內環路30分鐘經濟圈,城裡城外切換便捷,又因毗鄰廣州南站,從事軟體發展的杜先生在參考了多種因素的前提下購買了這個單元。在無具體任務書的情況下,﹁自有物業﹂和﹁辦公規模長期穩定﹂是設計的兩個關鍵基點。
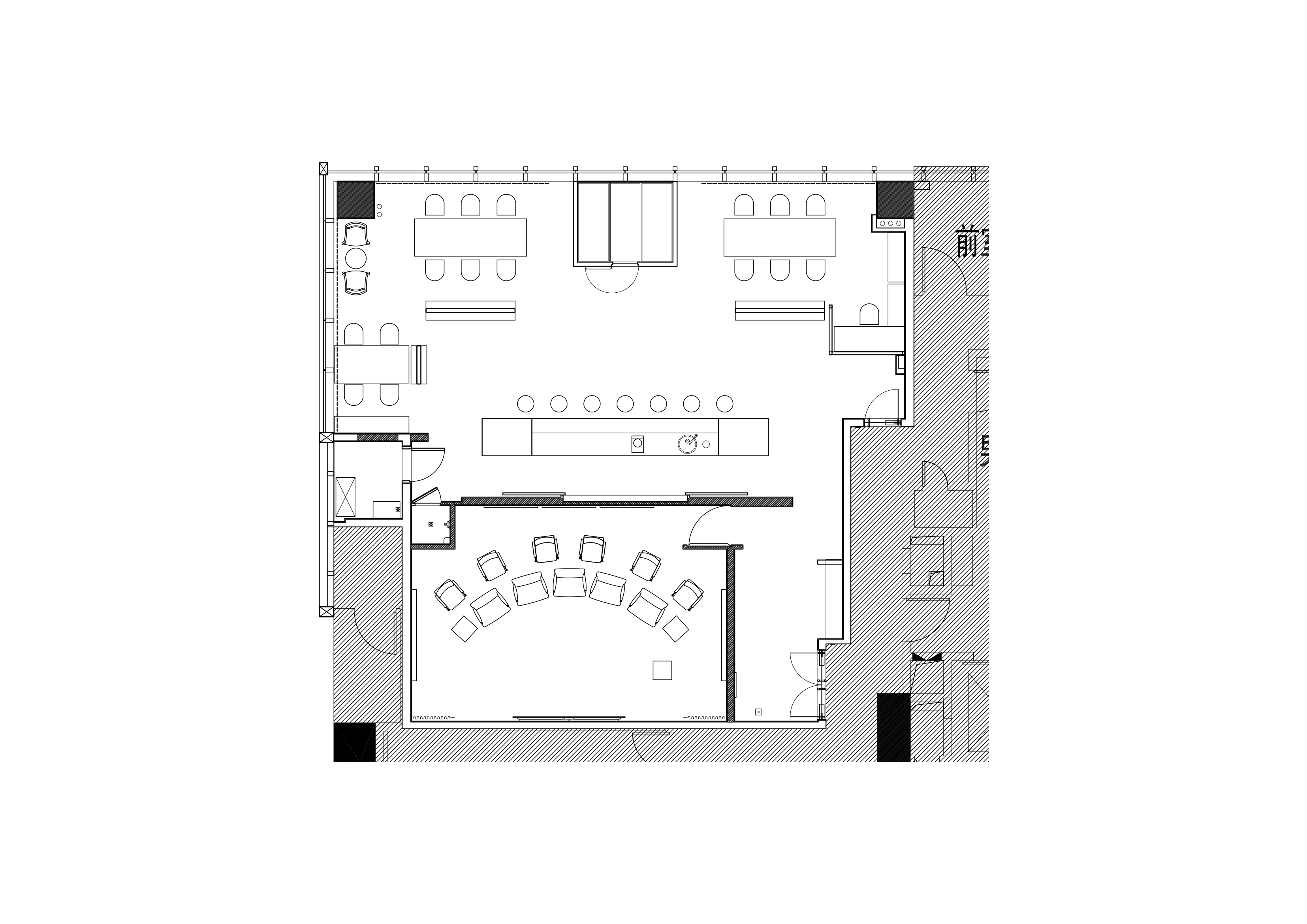
方位
場地位於所在樓棟的中高層,﹁L﹂型通高的玻璃幕牆朝向西-北兩面擁有靜態景觀的內庭院。
格局
所有設施和傢俱尊從主軸線作對稱均衡排布;除會議室和必須的服務類空間外,不設主管辦公室。﹁T-BOX﹂居中,分隔出兩個互不幹擾的工作區,並採用島式共用辦公桌進行小組工作。
採光和照明
由於沒有直射的陽光,加設透光率約為70%的捲簾後,室內可獲得大部分時間段無需開燈但柔和的光環境,並可按需要調節。場地的中央用點光源照射至地面形成光斑,強調了這個邊界稍為模糊的環境。所有工作區域採用帶有竹制燈罩的吊燈照明,燈具色溫一律為2700K,緊湊型螢光燈結合部分LED光源。
構築物
﹁T-BOX﹂
這是一個採用輕鋼結構,分作兩層,以榻榻米墊為模數搭建而成的小空間。滿足午休、靜修、攀爬運動等不同的功能使用。
傢俱
大部分的木製品和傢俱採用實竹板進行定制。會議台為滿足多功能切換的要求,仿照傳統大木作中﹁抬梁﹂的意象,徹底地簡化為單杆件疊加的構造方式;島式辦公台採用裙箱式構造,目的是嵌入多台電腦主機,避免常規堆放可能產生的雜亂。
材料和工藝
相比傢俱用的實竹板,混凝土在視覺上是退讓的,但的確是這個空間的主角之一。小樣從承包商提供的幾款成色不同的水泥樣本中確定。吧台和兩處矮隔斷由清水混凝土現澆而成,水平面經過手工打磨,餘下拆模即成。門廊地面用細砼砂漿找平,經過臺式打磨機打磨,表面平滑。牆面進行了微水泥批蕩,無天花、敞開的樓板則是現成的效果。
設備
吧台的排水由污水提升泵抽取排放
重訪有感
在完工使用後的第三年,我們對項目進行了回訪和拍照記錄。見辦公運作流暢,各處收納、保養良好,相比之前更添加了溫潤的氣息,令人愉悅!
﹁已故當代作家王小波,有《黃金時代》等代表作,同時他又是中國第一代程式師之一……﹂,這是我們與業主在方案期間談及最多的一個話題。令人回味的是,也許正是這個話題啟動了諸多潛在的設計要素,在有意無意之間形成了電腦語言和空間建構之間的對話。例如,﹁二進位﹂對應單構件疊加,制式轉化對應場景切換,真切地令人感到﹁萬物同構﹂!但這些並非通過訂立目標去達成,而是一個立意-梳理-拓展的過程。
混凝土的應力釋放週期長,不容易避免地現場也有幾處細微的龜狀裂紋。但視覺上無傷大雅,看似增加了一些煙火氣,或者講﹁文學氣息﹂。此外,從﹁T-BOX﹂的外觀,洗手間門鎖位置(因構造需要)增設的﹁T﹂型暗槽,再到會議室演講台的﹁T﹂字形態,都暗合了業主公司的品牌名稱,但這些並非來自業主的要求,也不是設計師刻意而為,在良好的機緣下,這可以看作偶然,但更多的又似是必然。


